265 кв.м.
Отличный проект на ЮБК!, 265 м²
Лот
61945817Комнат
5Цена за м2
403 774 руб.Всего этажей
2Расположение
- Локация: Ялта г.
- Район: Ялта г.
- Адрес: Крым Республика, Ялта г., Фрунзе пер., д.80А
- Показать на карте
На Южном побережье Крыма, в п. Краснокаменка, предлагается Вашему вниманию объект на стадии строительства.
Об объекте:
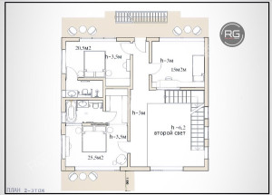
Основной дом, общей площадью 220 м2, 2 этажа с эксплуатируемой крышей. Потолок 3.5 м. Зона второго света 6.5 м.
1 этаж: кухня-столовая, совмещенная с гостиной (высота потолка гостиной 6.5 м), сан. узел, прихожая.
2 этаж: 2 мастер-спальни с сан. узлом (одна из спален с большой гардеробной) + 1 спальня-детская/кабинет. В каждой комнате есть выход на видовой балкон.
Гостевой дом, площадью 45 м2, этаж с эксплуатируемой крышей: кухня-гостиная, спальная комната, сан.узел, прихожая. Дом полностью готов к комфортному проживанию, с готовностью под ключ - ремонт с мебелью и встраиваемой техникой: посудомоечная машина, фильтр очистки воды, варочная поверхность, духовой шкаф, островная вытяжка, холодильник, кофемашина, инверторный кондиционер, ТВ, стиральная машина с функцией сушки, бойлер. Тёплый пол. Кондиционирование. Панорамное остекление.
Дома с ремонтом, оснащены современной техникой и мебелью. В строительстве и оформлении интерьера использованы высококачественные, дорогие материалы: натуральное дерево (крашеный дуб), искусственный камень, фурнитура с доводчиками.
С участка открывается вид на бескрайние море и лес. Со второго этажа строений откроется панорамный вид на Гурзуф с его славными Медведь-Горой и скалами Адаларами.
Общая видовая площадь готового проекта, включая террасу, балконы и эксплуатируемые крыши - 500 м2.
Коммуникации.
Заведено электричество 15 кВт. Отопление от электрокотла, с возможностью подключения к газу. К участку подведен газ, документы в оформлении. На участке своя скважина + резервуары с водой. Канализация - септик.
Инфраструктура.
В поселке развита инфраструктура, есть продуктовые магазины, школа, детский сад, почта и др. Три озера, лавандовые поля, любимая альпинистами и всеми известная скала Красный камень - преимущества Краснокаменки. Рядом международный детский центр Артек, со школой нового поколения. Дорога в Гурзуф с более развитой инфраструктурой и к морю (с оборудованными пляжами) занимает ~ 7-10 минут на авто. Путь в Ялту составит ~ 20 минут.
Данный объект расположен высоко, в уютном, рекреационном месте, вдали от шума и городской суеты, в окружении Алуштинского лесного заповедника. Рядом доброе соседство, вокруг тишина, аромат леса и пение птиц.
На данный момент активно, ежедневно ведется строительство основного дома. Стоимость объекта на сегодня рассчитана согласно выполненным работам.
Звоните и записывайтесь на просмотр! Возможен онлайн-показ. Ипотека. Сотрудничество с партнерами.
Особенности
- Ипотека
- Балкон
Подробнее об объекте
- Год постройки: 2024 г.
- Тип жилья: дом
- Тип сделки: продажа
- Тип недвижимости: жилая
- Категория: дом
- Тип дома: Газобетон
- Количество комнат: 5
- Комнатность: 5
- Общая площадь: 265 кв.м.
- Жилая площадь: 120 кв.м.
- Площадь участка: 7 сотка
- Тип участка: ИЖС
- Цена за м²: 403 774 руб.
- Этажей в доме: 2
- Высота потолков: 3.5
- Ремонт: дизайнерский
- Тип балкона: 3 балкона
- Тип отопления: Электрокотел
- Теплоснабжение: Да
- Тип канализации: Локальная
- Электричество кВт: 15
- Тип электроснабжения: Да
- Вода: Скважина
- Водоснабжение: Да
- Газоснабжение: Да
- Дорога: Грунтовая
- Категория земли: ИЖС
- Санузел: 2
- Совмещенный санузел: 2
- Новостройка: Да
Персональный менеджер объекта, Олеся Хейккинен
Rielt Group Agency — это команда профессионалов, которые ставят своей целью не просто закрыть очередную сделку, а оказать заказчику всестороннюю помощь. Это информационная поддержка, продвижение, сбор документов, консультации, проведение переговоров.
Наши постоянные клиенты — это сетевые компании, предприятия, физические лица. За много лет мы накопили опыт работы в разных городах и регионах России, включая Санкт-Петербург, Москву и Крым.
Команда Rielt Group Agency избавит Вас от рисков и тревог, от бумажной волокиты и от необходимости лично контролировать все нюансы.
Хотите получить индивидуальный подбор объектов от агента?
Хотите приобрести или взять в аренду недвижимость? Вам поможет команда Rielt Group Agency. Обращаясь к нам, Вы получаете всестороннюю поддержку — от начальной консультации до заключения договора.
Все объекты агентаПохожие объекты
Устали
выбирать сами?
Соблюдение интересов клиента, удобство и высокое качество оказываемых услуг — наш главный приоритет. Доверяя нам поиск и подбор объектов, Вы экономите свое время и получаете предложения, точно подходящие под Ваш запрос. В Ваше распоряжение будут предоставлены варианты из актуальной и постоянно пополняемой базы Rielt Group Agency. Став нашим клиентом, Вы будете раньше других получать информацию о новых объектах, еще до того, как сведения о них появятся в открытых интернет-источниках.
Хотите узнавать об объектах, не представленных в открытом рынке? Ваш персональный менеджер будет рад предоставить Вам и такую информацию.
Всё ещё остались вопросы?
Хотите подробнее узнать о представленных вариантах? Желаете уточнить подробности сотрудничества с Rielt Group Agency? Просто укажите свое имя и оставьте телефон. Вскоре наш менеджер свяжется с Вами, чтобы подробно ответить на все вопросы.



































































