153 кв.м.
Дом с бассейном в Крыму, 153 м² ЭКСКЛЮЗИВ
Лот
49054490Комнат
3Цена за м2
196 014 руб.Всего этажей
1Расположение
- Локация: Краснолесье с.
- Район: Краснолесье с.
- Адрес: Крым Республика, Симферопольский район, Краснолесье с., Дальняя ул., д.45
- Показать на карте
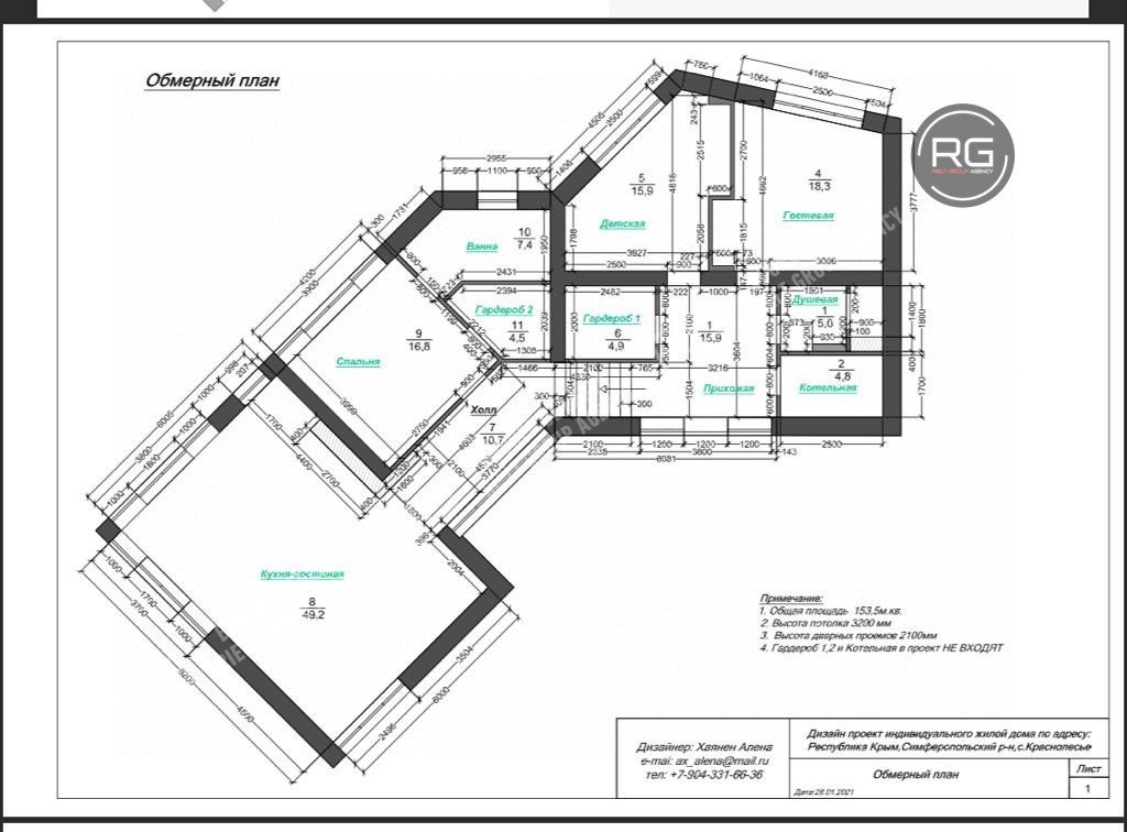
В Симферопольском районе, в посёлке Краснолесье, продаётся дом общей площадью 153.5 м2 на земельном участке 43.3 сотки.
Об объекте:
Планировка:
Технические характеристики:
Инфраструктура: в непосредственной близости супермаркеты, школа, МФЦ, банк, детский сад. Дорога в Симферополь, где развита вся необходимая для жизни инфраструктура, занимает ~10 минут.
Поселок окружен лиственными и хвойными растениями. Рядом заповедник. Шикарные пейзажи, горный воздух, солнце, водоемы - лучшее место для ценителей спокойной жизни в Крыму.
Просмотр возможен в любое удобное для вас время.
Сотрудничество с партнерами. Помощь в оформлении ипотеки.
Особенности
- Ипотека
Подробнее об объекте
- Год постройки: 2021 г.
- Тип жилья: дом
- Тип сделки: продажа
- Тип недвижимости: жилая
- Категория: дом
- Тип дома: Панельный
- Количество комнат: 3
- Комнатность: 3
- Общая площадь: 153 кв.м.
- Жилая площадь: 51 кв.м.
- Площадь кухни: 49.2 кв.м.
- Площадь комнаты: 16.8, 15.9, 18.3
- Площадь участка: 43 сотка
- Тип участка: ИЖС
- Цена за м²: 196 014 руб.
- Этажей в доме: 1
- Высота потолков: 3.2
- Ремонт: требует ремонта
- Тип отопления: Нет
- Тип канализации: Локальная
- Электричество кВт: 15
- Тип электроснабжения: Да
- Вода: Водопровод
- Водоснабжение: Да
- Дорога: Грунтовая
- Категория земли: ИЖС
- Санузел: 2
- Раздельный санузел: 2
- Новостройка: Да
- Сауна: Да
- Бассейн: Да
Персональный менеджер объекта, Олеся Хейккинен
Rielt Group Agency — это команда профессионалов, которые ставят своей целью не просто закрыть очередную сделку, а оказать заказчику всестороннюю помощь. Это информационная поддержка, продвижение, сбор документов, консультации, проведение переговоров.
Наши постоянные клиенты — это сетевые компании, предприятия, физические лица. За много лет мы накопили опыт работы в разных городах и регионах России, включая Санкт-Петербург, Москву и Крым.
Команда Rielt Group Agency избавит Вас от рисков и тревог, от бумажной волокиты и от необходимости лично контролировать все нюансы.
Хотите получить индивидуальный подбор объектов от агента?
Хотите приобрести или взять в аренду недвижимость? Вам поможет команда Rielt Group Agency. Обращаясь к нам, Вы получаете всестороннюю поддержку — от начальной консультации до заключения договора.
Все объекты агентаПохожие объекты
Устали
выбирать сами?
Соблюдение интересов клиента, удобство и высокое качество оказываемых услуг — наш главный приоритет. Доверяя нам поиск и подбор объектов, Вы экономите свое время и получаете предложения, точно подходящие под Ваш запрос. В Ваше распоряжение будут предоставлены варианты из актуальной и постоянно пополняемой базы Rielt Group Agency. Став нашим клиентом, Вы будете раньше других получать информацию о новых объектах, еще до того, как сведения о них появятся в открытых интернет-источниках.
Хотите узнавать об объектах, не представленных в открытом рынке? Ваш персональный менеджер будет рад предоставить Вам и такую информацию.
Всё ещё остались вопросы?
Хотите подробнее узнать о представленных вариантах? Желаете уточнить подробности сотрудничества с Rielt Group Agency? Просто укажите свое имя и оставьте телефон. Вскоре наш менеджер свяжется с Вами, чтобы подробно ответить на все вопросы.



























































