157 кв.м.
3ккв в ЖК Белый дом на ЮБК!, 157 м²
Лот
65514543Комнат
3Цена за м2
203 822 руб.Этаж
2Расположение
- Локация: Гурзуф п.г.т.
- Район: Гурзуф п.г.т.
- Адрес: Крым Республика, Гурзуф п.г.т., Строителей ул., д.3а
- Показать на карте
Элитная квартира в Гурзуфе с видом на море и горы, расположенная в одном из лучших жилых домов (ЖК "Белый дом").
В квартире выполнен качественный дизайнерский ремонт, на полу итальянская плитка, кухонный гарнитур со встроенной техникой, система общеобменной вентиляции, кондиционирования и отопления квартиры.
Ремонт выполнен в январе 2024 года.
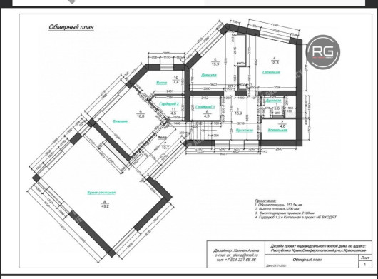
Квартира общей площадью 157 кв.м. (с учетом террасы-балкона).
Планировка квартиры:
-огромная гостиная с зоной кухни
-спальня с гардеробом
- мастер спальня с сан узлом в котором джакузи и изюминка квартиры своя парная
- гостевой санузел
-видовая терраса-балкон общей площадью 30 кв.м
Гостиная имеет 3 отдельных выхода на балкон через панорамные витражные стеклопакеты. Со всех окон квартиры и балкона открываются красивейшие виды на море, горы и на скалы Адалары.
Квартиру можно приобрести в ипотеку.
Высота потолков 3 м!
Квартира с мебелью и техникой - заходи и живи с комфортом! В квартире предусмотрено газовое отопление и горячее водоснабжение от газовой котельной дома. Вода без перебоев. По всему периметру квартиры установлены водяные теплые полы.
У комплекса закрытая охраняемая территория с видеонаблюдением и консьержем 24/7, ландшафтное озеленение, 2 бассейна (детский и взрослый), паркинги (открытый и подземный), детская площадка, мангальная зона для отдыха.
Рядом продовольственный магазин и ресторан-отель "Мускатель", где можно вкусно и качественно покушать и насладиться вечерними программами заведения.
Жилой дом находится в 12-15 минутах пешей ходьбы до моря и по соседству с Международным Детским Центром АРТЕК.
Идеальное расположение, чистый воздух, отличный ландшафтный дизайн территории жилого комплекса.
Недвижимость идеально подойдет для жизни и отдыха!
Один собственник, зарегистрированных лиц в квартире нет.
Особенности
- Ипотека
- Балкон
- Лифт
Подробнее об объекте
- Тип сделки: продажа
- Тип недвижимости: жилая
- Категория: квартира
- Тип дома: Монолитный
- Количество комнат: 3
- Комнатность: 3
- Общая площадь: 157 кв.м.
- Жилая площадь: 80 кв.м.
- Площадь кухни: 10 кв.м.
- Цена за м²: 203 822 руб.
- Этаж: 2
- Этажей в доме: 14
- Вид из окон: Во двор и на улицу
- Ремонт: дизайнерский
- Планировка: Смежно-изолированная
- Тип балкона: Балкон
- Тип отопления: Центральное
- Санузел: 2
- Совмещенный санузел: 2
- Новостройка: Да
Персональный менеджер объекта, Олеся Хейккинен
Rielt Group Agency — это команда профессионалов, которые ставят своей целью не просто закрыть очередную сделку, а оказать заказчику всестороннюю помощь. Это информационная поддержка, продвижение, сбор документов, консультации, проведение переговоров.
Наши постоянные клиенты — это сетевые компании, предприятия, физические лица. За много лет мы накопили опыт работы в разных городах и регионах России, включая Санкт-Петербург, Москву и Крым.
Команда Rielt Group Agency избавит Вас от рисков и тревог, от бумажной волокиты и от необходимости лично контролировать все нюансы.
Хотите получить индивидуальный подбор объектов от агента?
Хотите приобрести или взять в аренду недвижимость? Вам поможет команда Rielt Group Agency. Обращаясь к нам, Вы получаете всестороннюю поддержку — от начальной консультации до заключения договора.
Все объекты агентаПохожие объекты
Устали
выбирать сами?
Соблюдение интересов клиента, удобство и высокое качество оказываемых услуг — наш главный приоритет. Доверяя нам поиск и подбор объектов, Вы экономите свое время и получаете предложения, точно подходящие под Ваш запрос. В Ваше распоряжение будут предоставлены варианты из актуальной и постоянно пополняемой базы Rielt Group Agency. Став нашим клиентом, Вы будете раньше других получать информацию о новых объектах, еще до того, как сведения о них появятся в открытых интернет-источниках.
Хотите узнавать об объектах, не представленных в открытом рынке? Ваш персональный менеджер будет рад предоставить Вам и такую информацию.
Всё ещё остались вопросы?
Хотите подробнее узнать о представленных вариантах? Желаете уточнить подробности сотрудничества с Rielt Group Agency? Просто укажите свое имя и оставьте телефон. Вскоре наш менеджер свяжется с Вами, чтобы подробно ответить на все вопросы.















































































