99,7 кв.м.
Квартира с видом на море, 99,7 м²
Лот
45179684Комнат
3Цена за м2
173 521 руб.Этаж
4Расположение
- Локация: Ялта г.
- Район: Ялта г.
- Адрес: Крым Республика, Ялта г., Щорса ул., д.42, к.6
- Показать на карте
Предлагается к продаже трехкомнатная квартира в ЖК Южный Берег. ЖК удобно расположен, жилые строения комплекса находятся всего в 2-ух км от моря.
При этом дорога до побережья проходит через парковую зону с асфальтированными дорожками. Застройщиком уделено большое внимание территории комплекса.
Площадь озеленена и полностью благоустроена. Более того, присутствует необходимая инфраструктура: просторный наземный и подземный паркинг, магазин, аптечный пункт, бассейн.
Есть детская площадка и тренажерный зал.
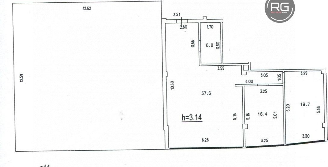
Общая площадь квартиры 99,7 кв.м.
Квартира расположена на 4-ом (последнем) этаже, из окон открывается вид на море и панораму Ялты.
Состоит из гостиной, спальни, кухни, совмещенного санузла, коридора. Эксплуатируемая кровля общей площадью 150 кв.м. предоставляется в пользование.
Квартира предлагается в черновой отделке. Все коммуникации заведены в квартиру и выполнена разводка по комнатам.
Просмотр в любое удобное для вас время. Возможен онлайн показ объекта. Все документы готовы к сделке.
Особенности
- Ипотека
- Балкон
Подробнее об объекте
- Год постройки: 2018 г.
- Тип сделки: продажа
- Тип недвижимости: жилая
- Категория: квартира
- Тип дома: Монолитный
- Количество комнат: 3
- Комнатность: 3
- Общая площадь: 99.7 кв.м.
- Жилая площадь: 83 кв.м.
- Площадь кухни: 10 кв.м.
- Цена за м²: 173 521 руб.
- Этаж: 4
- Этажей в доме: 4
- Вид из окон: На улицу
- Ремонт: требует ремонта
- Планировка: Смежно-изолированная
- Тип балкона: Балкон
- Тип отопления: Центральное
- Санузел: совмещенный
- Совмещенный санузел: Да
Персональный менеджер объекта, Олеся Хейккинен
Rielt Group Agency — это команда профессионалов, которые ставят своей целью не просто закрыть очередную сделку, а оказать заказчику всестороннюю помощь. Это информационная поддержка, продвижение, сбор документов, консультации, проведение переговоров.
Наши постоянные клиенты — это сетевые компании, предприятия, физические лица. За много лет мы накопили опыт работы в разных городах и регионах России, включая Санкт-Петербург, Москву и Крым.
Команда Rielt Group Agency избавит Вас от рисков и тревог, от бумажной волокиты и от необходимости лично контролировать все нюансы.
Хотите получить индивидуальный подбор объектов от агента?
Хотите приобрести или взять в аренду недвижимость? Вам поможет команда Rielt Group Agency. Обращаясь к нам, Вы получаете всестороннюю поддержку — от начальной консультации до заключения договора.
Все объекты агентаПохожие объекты
Устали
выбирать сами?
Соблюдение интересов клиента, удобство и высокое качество оказываемых услуг — наш главный приоритет. Доверяя нам поиск и подбор объектов, Вы экономите свое время и получаете предложения, точно подходящие под Ваш запрос. В Ваше распоряжение будут предоставлены варианты из актуальной и постоянно пополняемой базы Rielt Group Agency. Став нашим клиентом, Вы будете раньше других получать информацию о новых объектах, еще до того, как сведения о них появятся в открытых интернет-источниках.
Хотите узнавать об объектах, не представленных в открытом рынке? Ваш персональный менеджер будет рад предоставить Вам и такую информацию.
Всё ещё остались вопросы?
Хотите подробнее узнать о представленных вариантах? Желаете уточнить подробности сотрудничества с Rielt Group Agency? Просто укажите свое имя и оставьте телефон. Вскоре наш менеджер свяжется с Вами, чтобы подробно ответить на все вопросы.



















































