121,2 кв.м.
4-комн. апартаменты, S=121,2 м²
Лот
34816428Комнат
4Цена за м2
154 875 руб.Этаж
2Расположение
- Локация: Отрадное п.г.т.
- Район: Отрадное п.г.т.
- Адрес: Крым Республика, Ялта г., Отрадное п.г.т., Мориса Тореза ул., д.11
- Показать на карте
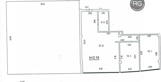
Продаётся 4 комнатный апартамент в рекреационном комплексе "Рипарио" общей площадью 121,2 кв.м., расположены на 2 этаже 5-этажного нового здания.
Технические характеристики.
Выполнен ремонт, установлен бойлер и кондиционеры.
Планировка состоит: из 3 спален, гостиной с зоной кухни, 2 санузлов. Из гостиной выход на просторную террасу площадью 19,1 кв.м. с панорамным видом на Ялту и море.
Инфраструктура.
До пляжа на территории комплекса 3 минуты пешим шагом, доступна вся инфраструктура комплекса: 1,5 км. своего пляжа, несколько гектаров ухоженного зеленого парка, столовая, кафе, ресторан, конференц-залы, медцентр, фитнес-клуб, теннисные корты, детская игровая комната и многое другое. Территория комплекса под круглосуточным наблюдением и охраной.
Просмотр в любое удобное для вас время. Помощь в оформлении ипотеки.
Особенности
- Балкон
- Лифт
Подробнее об объекте
- Тип сделки: продажа
- Тип недвижимости: жилая
- Категория: квартира
- Тип дома: Панельный
- Количество комнат: 4
- Комнатность: 4
- Общая площадь: 121.2 кв.м.
- Жилая площадь: 102.1 кв.м.
- Площадь кухни: 10 кв.м.
- Цена за м²: 154 875 руб.
- Этаж: 2
- Этажей в доме: 5
- Вид из окон: Во двор и на улицу
- Ремонт: косметический
- Планировка: Изолированная
- Тип балкона: Балкон
- Тип отопления: Индивидуальное отопление
- Санузел: 2
- Раздельный санузел: 2
- Апартаменты: Да
- Новостройка: Да
Персональный менеджер объекта, Олеся Хейккинен
Rielt Group Agency — это команда профессионалов, которые ставят своей целью не просто закрыть очередную сделку, а оказать заказчику всестороннюю помощь. Это информационная поддержка, продвижение, сбор документов, консультации, проведение переговоров.
Наши постоянные клиенты — это сетевые компании, предприятия, физические лица. За много лет мы накопили опыт работы в разных городах и регионах России, включая Санкт-Петербург, Москву и Крым.
Команда Rielt Group Agency избавит Вас от рисков и тревог, от бумажной волокиты и от необходимости лично контролировать все нюансы.
Хотите получить индивидуальный подбор объектов от агента?
Хотите приобрести или взять в аренду недвижимость? Вам поможет команда Rielt Group Agency. Обращаясь к нам, Вы получаете всестороннюю поддержку — от начальной консультации до заключения договора.
Все объекты агентаПохожие объекты
Устали
выбирать сами?
Соблюдение интересов клиента, удобство и высокое качество оказываемых услуг — наш главный приоритет. Доверяя нам поиск и подбор объектов, Вы экономите свое время и получаете предложения, точно подходящие под Ваш запрос. В Ваше распоряжение будут предоставлены варианты из актуальной и постоянно пополняемой базы Rielt Group Agency. Став нашим клиентом, Вы будете раньше других получать информацию о новых объектах, еще до того, как сведения о них появятся в открытых интернет-источниках.
Хотите узнавать об объектах, не представленных в открытом рынке? Ваш персональный менеджер будет рад предоставить Вам и такую информацию.
Всё ещё остались вопросы?
Хотите подробнее узнать о представленных вариантах? Желаете уточнить подробности сотрудничества с Rielt Group Agency? Просто укажите свое имя и оставьте телефон. Вскоре наш менеджер свяжется с Вами, чтобы подробно ответить на все вопросы.











































